|
|
 |
|
 |
|
 |
HOME > ȸ»ç¼Ò°³ > Á¦·ÊÁ¤º¸ |
|
|
|
|
|
 |
| |
 |
| |
£º |
|
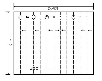
±æÀÌ 2ÀÚ*¾à 60cm) ³Êºñ 2ÀÚ 6Ä¡ (¾à 78cm)ÀÇ ¹éÁö¸¦ 12°£À¸·Î Á¢¾î Á¢¾îÁø ¼± 11°³¸¦ ¿À¸¥ÂÊ¿¡ ¼ºÎÅÍ 1-11±îÁö ¹øÈ£¸¦ °¡Á¤ÇÑ´Ù.
|
|
|
£º |
|
¿À¸¥ÂʺÎÅÍ 1¼±°ú 2¼±À» ¿¬°ãÃÄ ¿ÞÂÊÀ¸·Î Á¢°í 3¼±Àº °Ç³Ê¶Ù°í 4¼±À» ±âÁØÀ¸·Î ÇÏ¿© ¿ÞÂÊÀÇ ºÎ ºÐÀ» ¿À¸¥ÂÊÀ¸·Î Á¢´Â´Ù. 5¼±À» ±âÁØÇÏ¿© ´Ù½Ã ¿ÞÂÊÀ¸·Î Á¢À¸¸é 6, 7, 8, 9, 10, 11¼±ÀÌ º¸ÀδÙ.
|
|
|
£º |
|
À̰ÍÀ» Á¢¾îÁø ±×´ë·Î µÚÁý¾î¼ 6¼±À» ¿ÞÂÊÀ¸·Î ½Î¼ Á¢À¸¸é 7, 8, 9, 10, 11¼±ÀÌ ³²´Â´Ù.
|
|
|
£º |
|
À§, ¾Æ·¡ÀÇ Á¡¼±À» Á¢°í ´Ù½Ã 8¼±°ú 10¼±À» ¿À¸¥ÂÊÀ¸·Î Á¢Àº µÚ 11¼±À» ¾ÈÀ¸·Î ³¢¿ö ³ÖÀ¸¸é ¿Ï¼º µÈ´Ù. µ¿±×¶ó¹Ì°¡ ÃÄÁø ¹øÈ£ÀÇ ¼±Àº Á¢ÇÏÁö ¾Ê´Â´Ù.
|
|
| |
|
 |
| |
£º |
|
°íÀÎÀÇ »çÁøÀ¸·Î ´ë½ÅÇϰųª Çö´ë½ÄÀÇ Áö¹æÀ» ½á ºÙÀδÙ. Áö¹æÀº ³Êºñ 6cm, ±æÀÌ 22cm Á¤µµÀÇ ÇÑÁö³ª ¹éÁö À§¿¡ ¸ÔÀ¸·Î ¾´´Ù.
|
|
| |
|
 |
| |
 |
| |
 |
| |
 |
| |
 |
| |
|
|
|
| |
|
 |
|
|
|
|